ツルハ(本社・札幌市東区)は、「ツルハドラッグ深川店」(深川市5条20-1)を増床する。現在の店舗面積は約151坪(約500㎡)だが、約1・7倍の約269坪(約889㎡)にする。増床オープンは、2026年8月下旬を予定している。
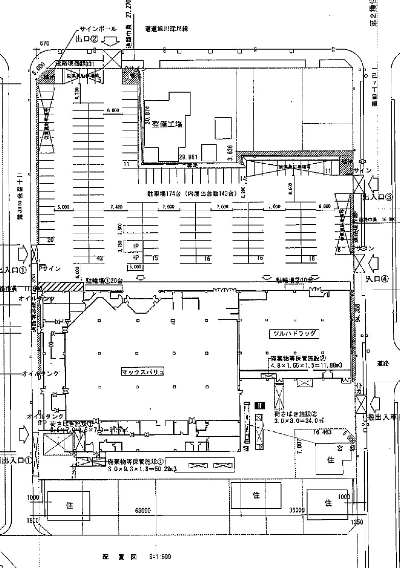
(画像は、「ツルハドラッグ深川店」増床後の施設配置図)
「ツルハドラッグ深川店」は、1996年4月に旧北海道ジャスコ(現イオン北海道)がオープンさせた「マックスバリュ深川店」と一体になった店舗。Vidaway(ヴィダウェイ、本社・横浜市瀬谷区)が展開する「サンホームビデオ深川店」(後に「TSUTAYA深川店」)も同時に開業した。店舗設置者は、三井住友ファイナンス&リース(本社・東京都千代田区)。「TSUTAYA深川店」は、2024年3月に閉店しており、今回、「ツルハドラッグ深川店」が、その店舗跡を利用して増床する。
これに伴って、大規模小売店舗立地法に基づく店舗面積は、「マックスバリュ深川店」と合わせて、従来の約832坪(約2747㎡)から約950坪(約3136㎡)に増える。駐車場の収容台数は、174台から143台になる。ツルハは、深川市内で「北光店」(北光町3丁目4-10)と「文光店」(文光町7-10)も展開しているが、この2店舗は、商業集積をしていない単独型の店舗。



































