コープさっぽろ(本部・札幌市西区)は、「砂川店」(砂川市西1条北10丁目1-17)を移転新築する。既存店舗から約300m離れた場所で、コープ店舗のほか、「無印良品」店舗、ドラッグ店舗などを集積させ、2026年8月頃にオープンする予定。
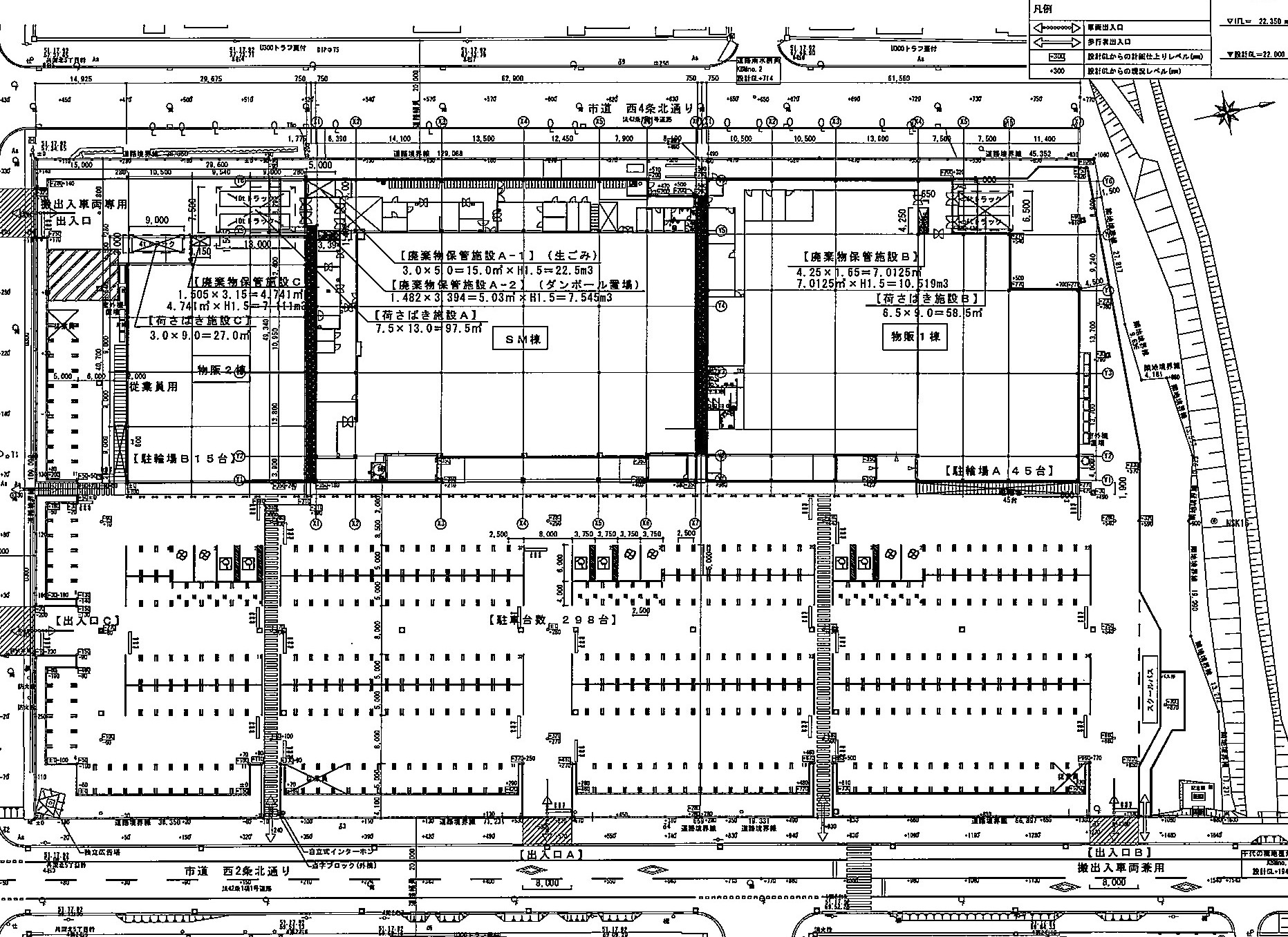
(画像は、「コープさっぽろ」店舗などの施設配置図)
現在の「コープさっぽろ砂川店」は、敷地面積約1870坪(約6173㎡)、建物の延べ床面積約1101坪(約3636㎡)、売り場面積約550坪(1816㎡)で1995年にオープンした。土地建物は賃借物件で、賃借期間が終了する。売り場面積の拡大と他の物販店舗との集積によって利便性を高めるため、移転して新施設を建設することにした。
新施設の建設場所は、閉校した旧中央小学校跡地(西3条北9丁目1)。敷地面積約6060坪(約2万㎡)で、コープさっぽろは、1億4600万円で市から取得した。旧中央小学校跡地は、第一種住居地域で、延べ床面積約909坪(3000㎡)以上の建物は建設できない用途地域。このため、コープさっぽろは、制限以下の建物を3棟建設する。
SM(スーパーマーケット)棟は店舗面積約657坪(2169・695㎡)で、コープさっぽろが入る。物販1棟はテナント1(店舗面積約324坪=1071・551㎡)とテナント2(店舗面積約301坪=994・273㎡)、物販2棟はテナント3(店舗面積約314坪=1036・337㎡)で構成。3棟の店舗面積合計は、約1651坪(5449・058㎡)。
施設配置は、北から物販1棟、SM棟、物販2棟とし、物販1棟とSM棟を結ぶ共用通路を設ける。物販1棟には「無印良品」と「トドックステーション」、物販2棟はドラッグストアが予定されている。駐車場の収容台数は298台、駐輪場の収容台数は60台。現在の「コープさっぽろ砂川店」は、国道12号沿いだが、新施設は、1本西側の市道沿いになる。



































