「DCM太平店」大店立地法申請、2026年7月1日新設予定

流通

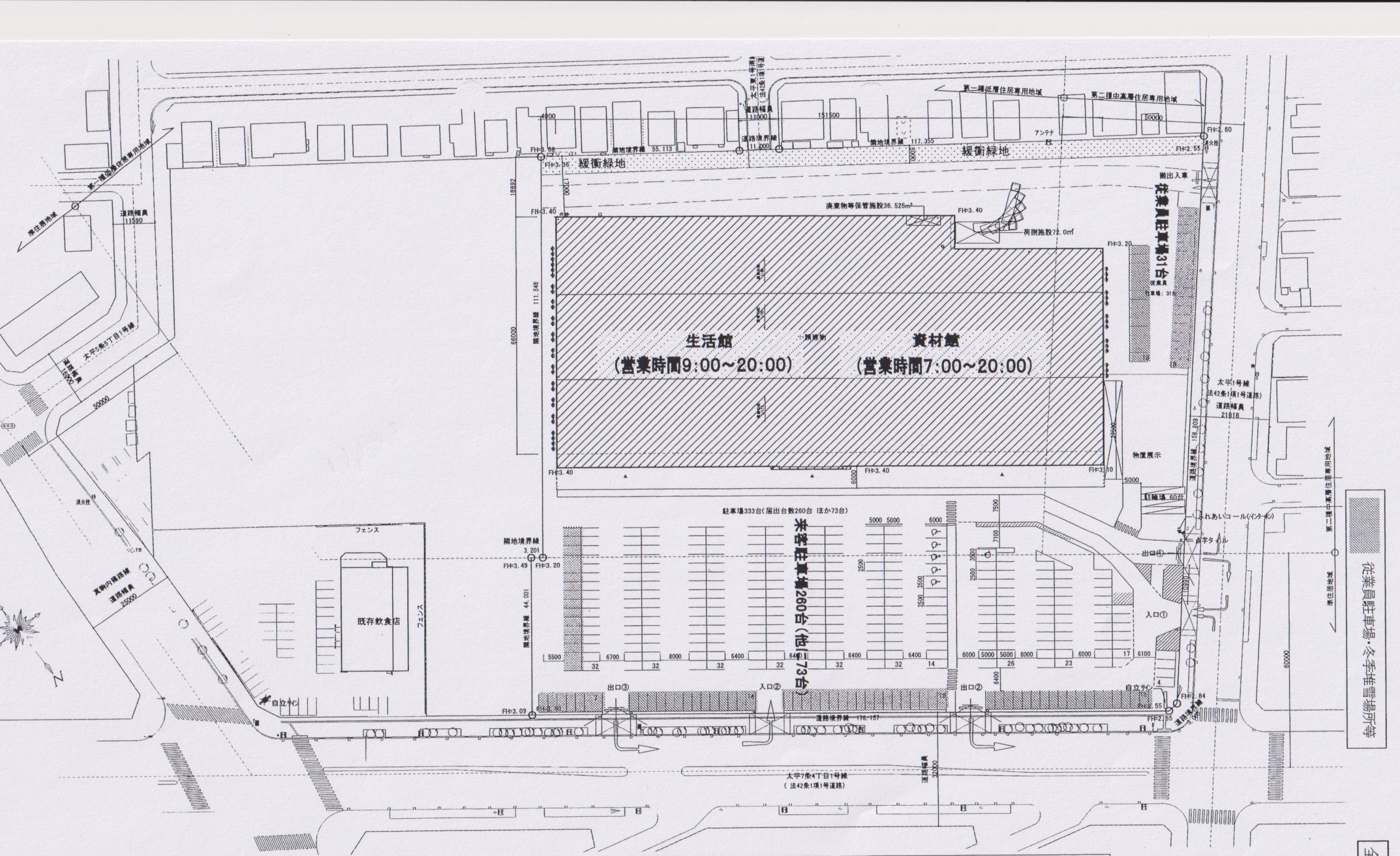
 DCM(本社・東京都品川区)は、札幌市北区太平6条3丁目2-1ほかの太平ゴルフセンター跡地で、「DCM太平店」の大規模小売店舗立地法に基づく新設届け出を札幌市に行った。新設予定日は、2026年7月1日となっている。(画像は、店舗の全体配置図)

 出店場所は、東15丁目・屯田通沿いの太平6条3丁目と4丁目の約1万2000坪(約3万9600㎡)の敷地。DCMは、そのうち約8624坪(約2万8462㎡)を使って、建築面積約3081坪(約1万169㎡)、平屋建て、延べ床面積約3028坪(約9995㎡)の建物を建設する。店舗は、生活館と資材館に内部で分かれ、店舗面積の合計は約2657坪(約8769㎡)。駐車台数は260台、営業時間は生活館が9時~20時、資材館は7時~20時。

 太平ゴルフセンター跡地は、また約3375坪(約1万1138㎡)が更地の状態で残ることになるため、新たに商業施設の建設も想定される。また、隣接地には、既に2023年12月に「マクドナルド太平6条店」(太平6条4丁目2-3)がオープンしている。DCMは、近隣に「DCM篠路店」(北区篠路1条1丁目1-10)と「DCM北栄店」(東区北49条東7丁目1-1)を展開しており、新店舗は、こうした既存店舗の集約に繋がりそうだ。

関連記事

SUPPORTER

SUPPORTER